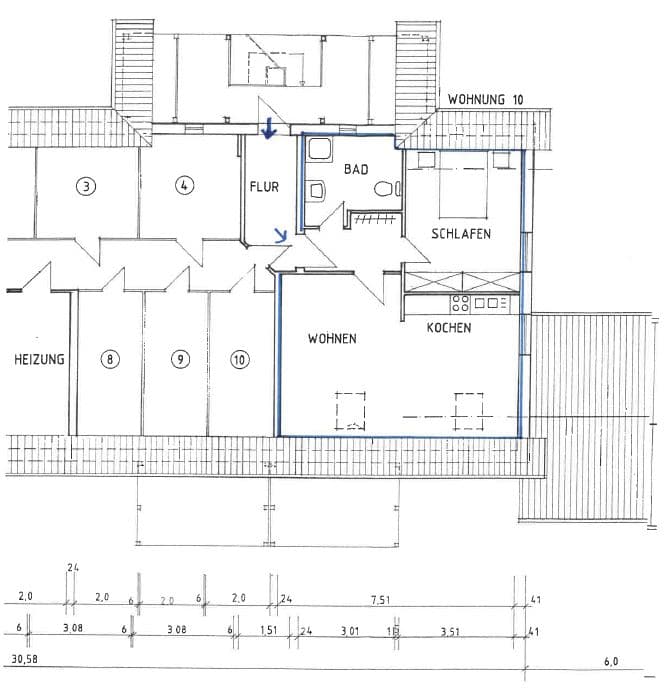
2-Raum Wohnung
- Adresse
- Kirschenallee 35, Röbel
- Etage
- Dachgeschoss
- Verfügbar ab
- sofort
- Wohnfläche
- 50.68 m²
Mietkonditionen
Beschreibung
Die 2-Raum Wohnung befindet sich in zentraler Lage von Röbel/Müritz, einer charmanten Kleinstadt direkt am Westufer der Müritz.
Dank der naturnahen Umgebung in Verbindung mit einer gut ausgebauten Infrastruktur bietet Röbel einen attraktiven Wohn- und Lebensmittelpunkt.
Das Wohnhaus liegt in einer ruhigen Siedlung mit Ein- und Mehrfamilienhäusern uns ist nur wenige Gehminuten von der Müritz entfernt. Die Nähe zum Wasser sowie das angenehme Wohnumfeld machen die Lage besonders attraktiv.
Herzstück der Wohnung ist der großzügige, offene Wohn- und Essbereich mit integriertem Küchenbereich. Das Badezimmer wurde vor Kurzem vollständig saniert und modern gestaltet. Ergänzt wird das Raumangebot durch ein separates Schlafzimmer und einen Flur.
Ausstattung
Downloads
Standort
Google Maps ist deaktiviert
Bitte , um die Karte anzuzeigen.